Description | Beschrijving
-
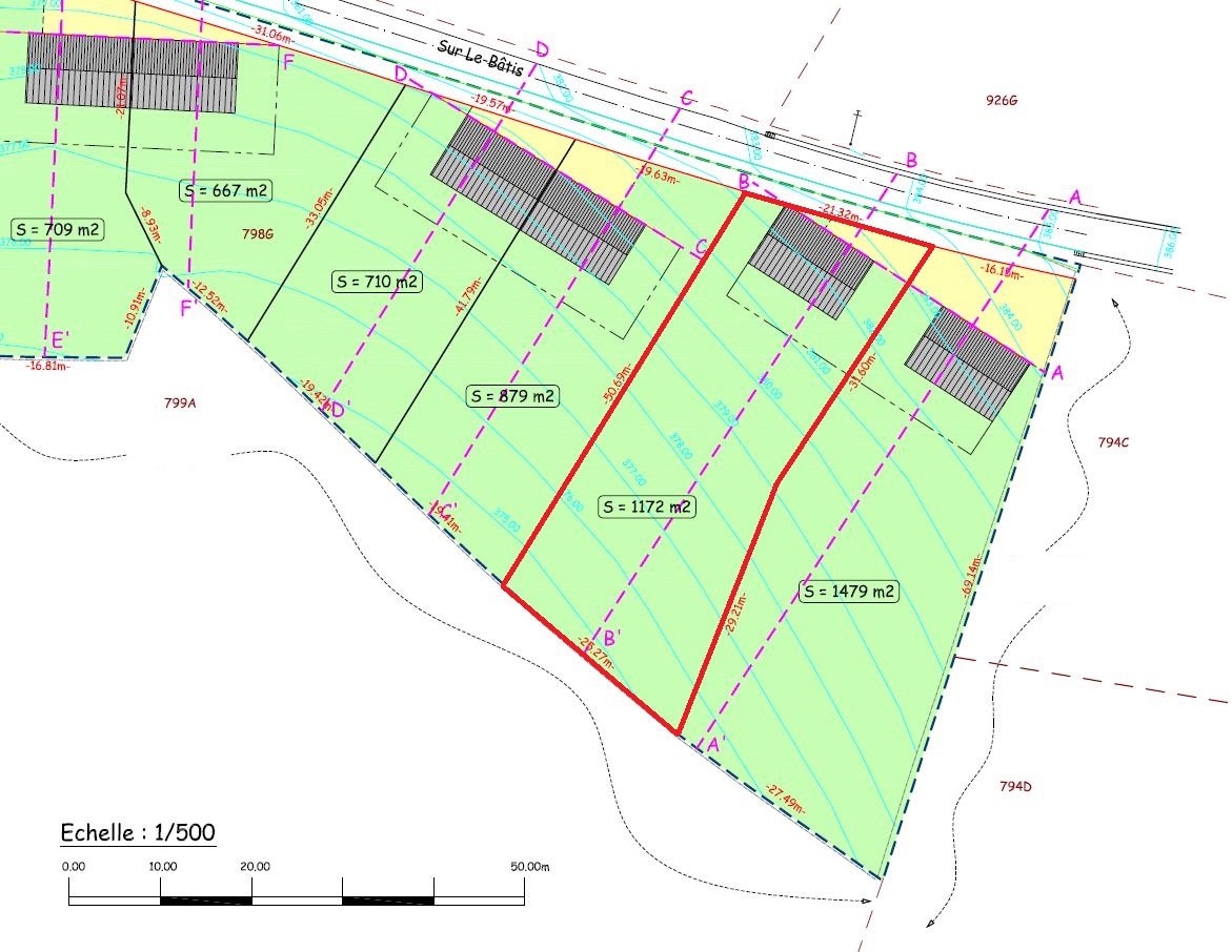
Description:
Bouwgrond met een oppervlakte van 11 are en 72 centiare, voor een vrijstaande woning, met mooi uitzicht.
LOT 6 : 11a 72ca
Oriëntatie achteraan : ZUID
Breedte perceel : +- 21,32 meter
Diepte perceel : +- 50,69 à 60,81 meter
Water en elektriciteit zijn aanwezig in de straat.
Geschikt voor het bouwen van een vrijstaande woning.Gunstige ligging in een straat met weinig doorgaand verkeer nabij de N4 en toeristische plekken zoals Bastogne, Saint-Hubert, La Roche, …
Vraagprijs: 88.000 €
De bovenvermelde informaties en oppervlakten zijn indicatief en niet bindend.Aarzel niet om contact met ons op te nemen voor meer informatie.
Show all description
